













Rückzugsräume der Übenden
Masterarbeit
Research. 2020/2021.
Seit einigen Jahrzehnten wird in Deutschland darüber diskutiert, wie mit Kirchengebäuden umgegangen werden soll und kann, die aufgrund von sinkenden Mitgliederzahlen oder strukturellen Wandlungen nicht mehr in ihrer ursprünglichen Funktion genutzt werden. Wenn diesen Gebäuden nicht der Abriss droht, werden sie umgenutzt. Durch die Art und Weise der Umnutzungen und den öffentlichen Reaktionen spannen sich Themenfelder auf, anhand derer sich die vielschichtige Bedeutung und Wahrnehmung von Kirchen innerhalb der Gesellschaft zeigt. Neben die ganz pragmatische Frage nach einer neuen Funktion tritt die Tatsache, dass Kirchen unabhängig von der persönlichen Frömmigkeit des Besuchenden oft als ganz besondere Räume wahrgenommen werden. Ausgehend von dem konkreten Gebäude der Kirche wird in dieser Masterarbeit in mehreren Schritten eine Dekonstruktion vollzogen, um sich der Komplexität dieser Thematik zu nähern – der Beziehung zwischen spiritueller Praktik und der damit einhergehenden Raumproduktion zu Beginn des dritten Jahrtausends.
Die gesamte Arbeit kann auf architekturtheorie.txt heruntergeladen werden:
http://txt.architecturaltheory.eu/?p=3056&lang=de
Betreuung: Bart Lootsma











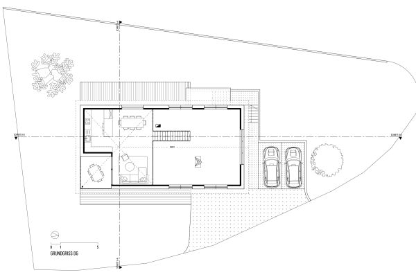
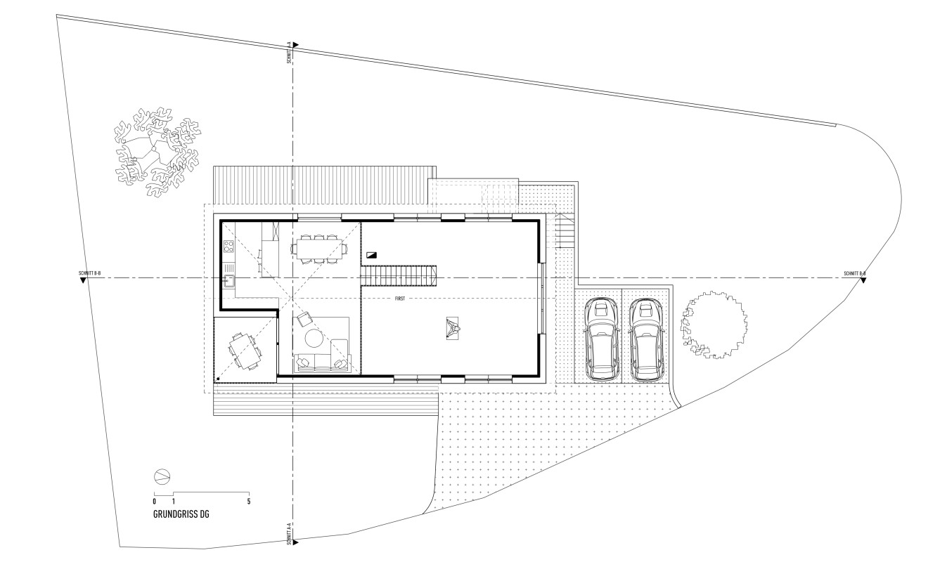
Haus JK
Ein- bis Zweifamilienhaus im Bregenzerwald
Architektur. 2019/2020.
Ein- bis Zweifamilienhaus, derzeit in Bau.
Das Grundstück befindet sich an einem nach Nordosten abfallenden Hang mit Blick in den vorderen Bregenzerwald. Zunächst wird die wachsenden Familie das Haus wahrscheinlich alleine bewohnen. Je nach Bedarf kann das Erdgeschoss jedoch als seperate Wohnung ausgebaut werden. Das Dachgeschoss, in Form von einer großzügigen Galerie, bietet einen flexiblen Raum für unterschiedlichste Nutzungen, der jederzeit in kleinere Räume unterteilt werden kann. Das EG wurde wegen der Hanglage in Beton ausgeführt, das OG und DG konnten in Holzmassivbauweise realisiert werden.
Vorentwurf / Entwurf / Einreichung














Leuchtkäfer
(Im)material
Experimentell. 2019.
Dieses Projekt ist inspiriert durch die „Raumkonzept“ Arbeiten des Künstlers Lucio Fontana. Fontana zerschneidet im wahrsten Sinne des Wortes die Zweidimensionalität der Leinwand und zerstört das traditionelle Medium der Malerei. Mit einem einzigen Schnitt öffnet sich ein Tor in die Unendlichkeit des Raumes.
Am Ende einer Vielzahl von Modellstudien steht eine begehbare Struktur im Wald. Zwischen vertikalen Rundrohren spannen sich Stoffbahnen auf, die durch punktuelles Vernähen miteinander verschmelzen. Die seitlich angeordneten Ebenen verspringen im Schnitt. Über Leitern gelangt man von einer Ebene zur nächsten. Ein lineares Durchschreiten ist allerdings nicht möglich, vielmehr muss man sich den Weg suchen. Bei Dunkelheit werden die Stoffverspannungen durch eine Lichtquelle im Inneren auf die Außenhaut projiziert. Jenachdem wie die Lichtquellen platziert sind, variiert der Grad der Verzerrung.
Betreuung: Karolin Schmidbaur, Christoph Opperer, Lukas Allner, Gonzalo Vaillo














Tondruck Wanddesign
Prototypenbau
Experimentell. 2020.
Diese Wandkacheln wurde im Rahmen eines Tondruck-Seminars gestaltet und können mit einer indirekten Beleuchtung kombiniert werden.
Betreuung: Philipp Schwaderer














Under Pressure
Pneumatische Überdachung
Architektur. 2019.
Die pneumatische Überdachung „Under Pressure“ wurde speziell für die Anforderungen des Vorplatzes des Musikpavillions in Prutz, Tirol, entwickelt. Ein stützenfreier Blick zur Bühne, eine gute Akustik und die Möglichkeit des Auf - und Abbaus standen im Zentrum des Entwurfsprozesses. Die Überdachung besteht aus drei Luftkissen mit je zwei Luftkammern, die aus thermoplastischem Polyurethan gefertigt werden. Eingehüllt in eine formgebenden Struktur aus Segeltuch werden die drei Segmente zusammengeschlossen und an vier, vor Ort installierte Stützen, angehängt. Die Aufhängung erfolgt über Stahlseile und Ösen an einem Kurbelpfosten aus Edelstahl. Bevor das gesamte Luftkissen in die Höhe gehisst wird, muss die Luftzufuhr an jede der sechs Kammern angeschlossen werden. Durch die sechs Luftkammern, drei an der Ober- und drei an der Unterseite, kann die Akustik vor Ort angepasst werden. Durch die Zufuhr von Stickstoff ist es möglich einen Nebel in den Luftkammern zu erzeugen, was für die Beschattung sorgt.
Betreuung: Stefan Rutzinger, Kristina Schinegger














Campus Innsbruck
Haus der Studenten
Architektur. 2017-2018.
Durch den Abriss einer obsolet gewordenen Bibliothek in zentraler Lage auf dem Campus, bietet sich die Möglichkeit einen neuen Treffpunkt zu schaffen, der fakultätsübergreifenden Austausch ermöglicht. Neben Ausstellungsräumen, einem Café und großzügigen Arbeitsbereichen für Studenten, liegt das Augenmerk des Entwurfes auf der Schaffung von bisher noch nicht vorhandenen Sport- und Ruhebereichen.
Mit: Svenja Raabe & Verena Rauh
Betreuung: Heike Bablick & Sybille Pittl














Pavillion Wattens
Temporäre Umgestaltung des Dorfplatzes
Architektur. 2017.
Der Pavillon wurde im Rahmen einer Sommerveranstaltung umgesetzt, um beschattete Sitzplätze zu schaffen. Durch den mehrtägigen Aufbau wurde das Interesse der Passanten geweckt und eine Kontaktfläche geschaffen.
Mit: Sophie Dorn
Unterstützungung: Kulturverein Grammophon














Ein neuer Himmel
Die Rolle des Körpers in der Wiener Avantgarde
Research. 2016.
„Ein neuer Himmel“ thematisiert den Blick der Wiener Avantgarde auf die Wechselbeziehung zwischen Mensch und Umwelt im Wien der 60er und 70er Jahre. Vorherrschende Werte und Lebensentwürfe werden in jenen Jahrzehnten durch gesellschaftliche und technologische Entwicklungen in Frage gestellt und neu definiert.
Analysiert wird, ob den Arbeiten der damaligen Avantgarde bereits post-humane Ansätze innewohnen. Dabei wird der Posthumanismus als eine veränderte Vorstellung von Technologie, dem menschlichen Körper, Natur und Sexualität verstanden.
Mit: Alexandra Paloma Angerer
Betreuung: Bart Lootsma & Alexa Baumgartner
„Wenn ich etwas erklären möchte, dann möchte ich das auch darstellen. Wenn ich selbst das Material sein kann, dann werde ich es auch sein.“ Valie Export 2010














Alles ist Architektur
The social network of the Viennese Avantgarde
Research. 2015-2016.
Our investigations have focused on the contacts and social network created and maintained by the group of the Viennese Avant-garde, who they met, corresponded or collaborated with and how they communicated.
Hans Hollein is identified as the key figure of the period, alongside with Walter Pichler and Raimund Abraham, looking at their influences and background, and then their subsequent influence on others (which is still remarkably ongoing today).
The role that emerging media and communications played was a significant one, and as such the research took an exploratory dive into the work and theories of Marshall McLuhan.
The text functions as a narrative, attempting to piece together key events and significant participants.
Mit: Fiona Robertson
Betreuung: Bart Lootsma & Alexa Baumgartner
“We need to liberate architecture from building!“ Hans Hollein 1963